Quadrilocale in vendita

Brembate Di Sopra, Via IV Novembre
€ 155.000
4 locali 4 locali
150 Mq 150 Mq
1 bagno 1 bagno

Quadrilocale in vendita

Brembate Di Sopra, Via IV Novembre

Descrizione annuncio

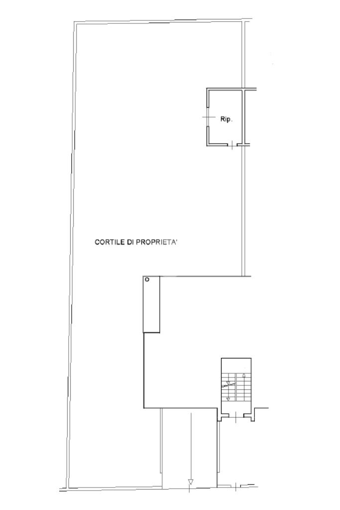
In contesto di sole due unità abitative semi indipendenti, ognuna con accesso carraio esclusivo e con una porzione di area esclusiva al piano terra

Trattasi di appartamento quadrilocale in villa bifamigliare a piano secondo e ultimo, libero su quattro lati e con giardino di proprietà a piano terra.

Al piano seminterrato si sviluppano il garage pertinenziale collegato internamente alle cantine e al locale tecnico.

Qui la scala comune conduce ai piani superiori, a piano secondo si sviluppa l’abitazione.

Soluzione è edificata negli anni 60 e presenta la tipica disposizione interna di quegli anni con il corridoio centrale che collega i vari locali dell’abitazione composta di:

Cucinotto separato con sala da pranzo, soggiorno e tre camere da letto con doppi servizi.

A piano terra completano la soluzione il giardino di proprietà di 300 mq e una porzione di proprietà del sottotetto non abitabile.

L’immobile risulta da ristrutturare in quanto non ha mai ricevuto interventi di ristrutturazione dalla sua costruzione.

UBICAZIONE E CONTESTO

Situata a Brembate di Sopra a pochi minuti dai principali servizi che il paese offre: Scuole, Mezzi pubblici, Campo Sportivo, Farmacia, Supermercato, Banche e varie attività commerciali situato a 20/30 minuti dall’ Aeroporto di Orio al Serio.

Mostra tutto

Nelle vicinanze

Trasporto pubblico Trasporto pubblico
Ambivere-Mapello
Ambivere-Mapello
2,0 Km
Ponte San Pietro
Ponte San Pietro
2,3 Km
672
672
1,6 Km
1091
1091
1,7 Km
Ricariche auto elettriche Ricariche auto elettriche
Municipio di Brembate di Sopra | EnelX
340 m
EnelX Campo Di Calcio Brembate
570 m
EnelX Polisportiva Brembate
800 m
FCS Almenno San Bartolomeo
2,3 Km
Evbility Presezzo
2,7 Km
Scuole Scuole
Parco Astronomico La Torre del Sole
560 m
Scuole
600 m
Scuola Primaria "Albert Sabin"
610 m
Scuola Elementare
2,0 Km
Scuole Medie Inferiori Luigi Angelini
2,1 Km
Farmacia Farmacia
Farmacia Comunale
300 m
Farmacia
400 m
Dott. Trail
660 m
Ospedali Ospedali
Casa Serena
660 m
Policlinico San Pietro
2,2 Km
Supermercati Supermercati
Supermercati
530 m
Famila
1,8 Km
Conad
2,2 Km
Unes2
2,4 Km
Legler Market
2,4 Km
Negozi Negozi
Negozi
310 m
Pasticceria Ema
650 m
Marchini Maurizio Laboratiorio Pasticceria
2,4 Km
Alimentari
2,5 Km
Panificio Oro Bianco
2,7 Km
Bar Bar
Bar
310 m
limbo
380 m
Caffè Aroma
1,6 Km
Inno's Cafe'
2,1 Km
Caffè de Fiola
2,2 Km
Ristoranti Ristoranti
Ristoranti
370 m
3Re
810 m
Agriturismo Al Boscone
990 m
Ryan
1,2 Km
Derek 2.0
1,4 Km
Mostra tutto

Caratteristiche

Rif.:
61162205
Piano:
2 di 2 (Piano su più livelli)
Box:
1
Balconi:
2
Camere da letto:
3
Arredamento:
Assente
Mostra tutto
Prezzo Prezzo
€ 155.000
Rata mutuo Rata mutuo
€ 735 / mese
Spese annue Spese annue
€ 0
Proponi il tuo prezzoProponi il tuo prezzo

Classe Energetica

Questo immobile è esente da classe energetica
Anno di costruzione:
1960
Riscaldamento:
Autonomo
Tipo impianto:
A radiatori
Tipo alimentazione:
Metano

Ti interessa visionare l'immobile?

Fissa un appuntamento  Fissa un appuntamento

Richiedi informazioni

Clicca su Leggi per aprire l'informativa
* Questi campi sono obbligatori

Calcola il tuo mutuo

Semplice e senza impegno
Anticipo

( % )
Mutuo

( % )

pochi semplici passi

inserisci i tuoi dati
Questionario completato
Grazie per aver richiesto un appuntamento senza impegno con un nostro Consulente del Credito e Assicurativo.

Hai inserito correttamente tutti i dati necessari e a breve riceverai una e-mail con un link da convalidare per inviare i tuoi dati.
Affiliato
Isola Paradiso Immobiliare Srl
Via Sorte, 41 24030 Brembate Di Sopra (BG)

Il nostro staff


  • Giada Cavenati
    Collaboratrice

  • Daniel Maffolini
    Collaboratore

  • Kevin Maffolini
    Affiliato

  • Jennifer Atzeni
    Coordinatrice
Via Sorte, 41 24030 Brembate Di Sopra (BG)
Zona: Brembate
Mostra su mappa
Affiliato
Isola Paradiso Immobiliare Srl
Via Sorte, 41 24030 Brembate Di Sopra (BG)

2026 Tecnocasa Franchising S.p.A. - P. IVA 08365160152 - Via Monte Bianco 60/A 20089 Rozzano (MI). Ogni agenzia ha un proprio titolare ed è autonoma. Privacy policy | Policy utilizzo | Cookie policy