Casa indipendente in vendita

Palazzago, Via Acqua - Burligo
€ 119.000
5 locali 5 locali
270 Mq 270 Mq
3 bagni 3 bagni

Casa indipendente in vendita

Palazzago, Via Acqua - Burligo

Descrizione annuncio

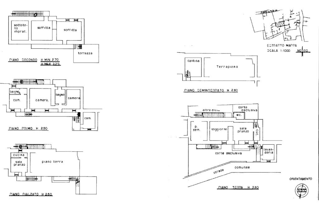
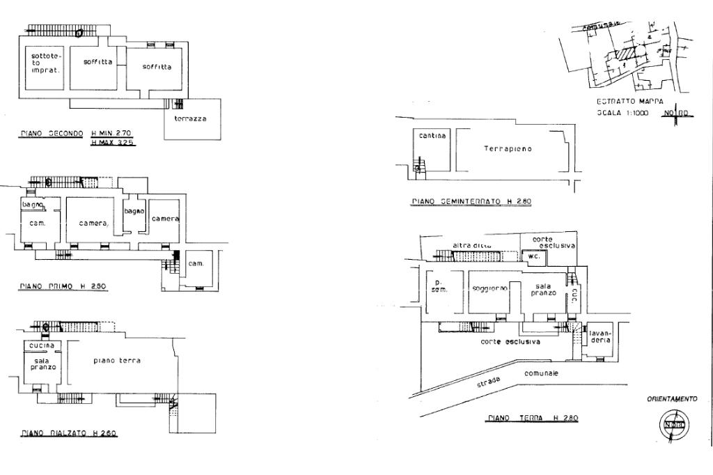
Trattasi di soluzione indipendente sviluppata principalmente su più livelli, libera su tre lati e con cortile di proprietà.

Edificata nella prima metà del 900, si compone di diversi locali distribuiti su diversi livelli collegati tra loro dalla scala esterna all’interno del cortile di proprietà.

A piano terra vi sono due cucinotti, uno a servizio di due locali comunicanti, l’altro a servizio di un locale separato dai precedenti e un bagno accessibile sia internamente che esternamente.

A piano primo tre camere e due bagni una di queste non collegata alle altre due.

Al secondo piano un solarium serve l’abitazione e da accesso al solaio.

Completano la soluzione una cantina e il box.

Parte dei locali sono stati ristrutturati totalmente negli anni ’80 mentre il solaio all’ultimo piano risulta totalmente a rustico.

La soluzione si presta alla realizzazione di diverse unità abitative semi indipendenti oppure con intervento strutturale più massiccio anche alla realizzazione di una soluzione uni-famigliare molto grande.

UBICAZIONE E CONTESTO

L’immobile è situato a Burligo, frazione del comune di Palazzago in contesto tranquillo e isolato, circondato dal verde in zona collinare, ottimale per chi vuol vivere fuori da contesti caotici a contatto con la natura.

Mostra tutto

Nelle vicinanze

Trasporto pubblico Trasporto pubblico
Trasporto pubblico
2,6 Km
Linea E03: Celana - Olgiate FS
Linea E03: Celana - Olgiate FS
2,9 Km
stazione di Pontida
stazione di Pontida
2,7 Km
Ricariche auto elettriche Ricariche auto elettriche
Hotel Camoretti
3,0 Km
Scuole Scuole
Collegio Convitto San Carlo Celana
1,9 Km
Scuole
3,0 Km
Farmacia Farmacia
Farmacia
1,7 Km
Farmacia Losa
2,8 Km
Supermercati Supermercati
Penny
2,6 Km
Bar Bar
Bar Break
2,6 Km
Bar 8
2,7 Km
Drupa
2,8 Km
Ristoranti Ristoranti
Pizzeria Cleopatra
2,7 Km
Ristoranti
2,9 Km
Mostra tutto

Caratteristiche

Rif.:
61177011
Piano:
4 di 5
Box:
1
Terrazzi:
1
Camere da letto:
4
Condizionamento:
Assente
Mostra tutto
Prezzo Prezzo
€ 119.000
Rata mutuo Rata mutuo
€ 564 / mese
Proponi il tuo prezzoProponi il tuo prezzo
Immobile valutato con T·Valuta

Classe Energetica

F
F
F
F
F
F
F
F
F
EP globale non rinnovabile:
334.22 kW h/m² anno
EP globale rinnovabile:
0.35 kW h/m² anno
EP invernale del fabbricato:
EP estiva del fabbricato:
Anno di costruzione:
1967
Riscaldamento:
Autonomo
Tipo impianto:
A radiatori
Tipo alimentazione:
Altro

Ti interessa visionare l'immobile?

Fissa un appuntamento  Fissa un appuntamento

Richiedi informazioni

Clicca su Leggi per aprire l'informativa
* Questi campi sono obbligatori

Calcola il tuo mutuo

Semplice e senza impegno
Anticipo

( % )
Mutuo

( % )

pochi semplici passi

inserisci i tuoi dati
Questionario completato
Grazie per aver richiesto un appuntamento senza impegno con un nostro Consulente del Credito e Assicurativo.

Hai inserito correttamente tutti i dati necessari e a breve riceverai una e-mail con un link da convalidare per inviare i tuoi dati.
Affiliato
Isola Paradiso Immobiliare Srl
Via Sorte, 41 24030 Brembate Di Sopra (BG)

Il nostro staff


  • Giada Cavenati
    Collaboratrice

  • Daniel Maffolini
    Collaboratore

  • Kevin Maffolini
    Affiliato

  • Jennifer Atzeni
    Coordinatrice
Via Sorte, 41 24030 Brembate Di Sopra (BG)
Zona: Brembate
Mostra su mappa
Affiliato
Isola Paradiso Immobiliare Srl
Via Sorte, 41 24030 Brembate Di Sopra (BG)

2026 Tecnocasa Franchising S.p.A. - P. IVA 08365160152 - Via Monte Bianco 60/A 20089 Rozzano (MI). Ogni agenzia ha un proprio titolare ed è autonoma. Privacy policy | Policy utilizzo | Cookie policy